Képes ingatlan és lakás kereső! - Budapest

Eladó lakás és ingatlan! - Budapest
Képes ingatlan és lakás kereső.
Válasszon a Belváros ingatlan kínálatából!
E-mail: info@funda.hu
            frissítve: 2025. szeptember 01.

Képes ingatlan és lakás kereső! - Budapest

Budapest - 5. kerület Petőfi Sándor utca, Lakás

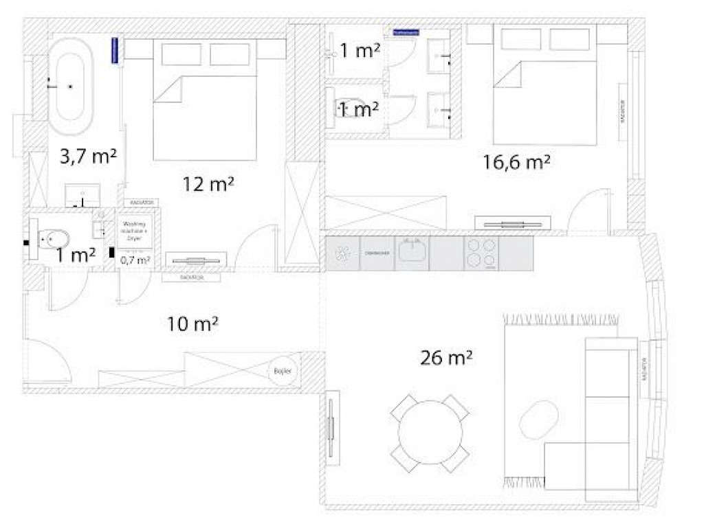
Jöjjön el és nézze meg ezt a frissen felújított és lakberendező által tervezett és életre hívott otthont, mely a kedvelt és pezsgő kávézókkal, éttermekkel teli, történelmi Pilvax közben található karnyújtásnyira a Párizsi Udvartól! A 72 nm-es lakás tágas légtere két hálót, két fürdőt, amerikai konyhás egységet rejt magában. A hűtést minden szobában A/C biztosítja, a fűtésről a ház központi kazánja, a meleg vizről bojler gondoskodik. A teljesen bebútorozott ingatlan további felszereltsége az elektromos redőny, a bio ethanol kandalló, a Bosch konyhai gépek, a tölgyfa parketta, egyedi gyártású bútorok, a szigetelt faablakok. Az ár a bútorokat, dekorációt magában foglalja Legyen Öné ez a minden igényt kielégítő otthon!

 ÚJ INGATLAN 
20
Petőfi Sándor utca 
195,000,000 Ft - 72 m2 
Eladó Lakás Budapest

195,000,000 Ft - 72 m²

 
Előszoba:  10.00 m² 
Wc:  1.00 m² 
Fürdő:  4.00 m² 
Hálószoba:  12.00 m² 
Amerikai konyhás nappali:  26.00 m² 
Fürdő + wc:  2.00 m² 
Hálószoba:  17.00 m² 

 

Ár:

195,000,000 Ft

IRSZ:1052

ID: chx51619

Ár/nm:

2708 EFt

Petőfi Sándor utca

Hivatalos méret:

72 m²

emelet: 2. 

Valós méret:

72 m²

Lift: Hívós Típus: Lakás

Szobák:

Melegvíz:

Félszobák:

Nézet:

utca

Lakás állapot (1-7):

0

Fényviszonyok:

Fekvés:

Közös ktg./rezsi:

0

Fűtés:

Házközponti

Hitel:

Nincs

Közlekedés:

Petőfi Sándor utca 
195 MFt - 72 m2 
Eladó Lakás Budapest

Petőfi Sándor utca 
195 MFt - 72 m2 
Eladó Lakás Budapest

Petőfi Sándor utca 
195 MFt - 72 m2 
Eladó Lakás Budapest

Petőfi Sándor utca 
195 MFt - 72 m2 
Eladó Lakás Budapest

Petőfi Sándor utca 
195 MFt - 72 m2 
Eladó Lakás Budapest

Petőfi Sándor utca 
195 MFt - 72 m2 
Eladó Lakás Budapest

Petőfi Sándor utca 
195 MFt - 72 m2 
Eladó Lakás Budapest

Petőfi Sándor utca 
195 MFt - 72 m2 
Eladó Lakás Budapest

Petőfi Sándor utca 
195 MFt - 72 m2 
Eladó Lakás Budapest

Petőfi Sándor utca 
195 MFt - 72 m2 
Eladó Lakás Budapest

Petőfi Sándor utca 
195 MFt - 72 m2 
Eladó Lakás Budapest

Petőfi Sándor utca 
195 MFt - 72 m2 
Eladó Lakás Budapest

Petőfi Sándor utca 
195 MFt - 72 m2 
Eladó Lakás Budapest

Petőfi Sándor utca 
195 MFt - 72 m2 
Eladó Lakás Budapest

Petőfi Sándor utca 
195 MFt - 72 m2 
Eladó Lakás Budapest

Petőfi Sándor utca 
195 MFt - 72 m2 
Eladó Lakás Budapest

Petőfi Sándor utca 
195 MFt - 72 m2 
Eladó Lakás Budapest

Petőfi Sándor utca 
195 MFt - 72 m2 
Eladó Lakás Budapest

Petőfi Sándor utca 
195 MFt - 72 m2 
Eladó Lakás Budapest

 

A Hirdető adatai:

Németh Csaba

info@funda.hu

+36 70-3122794

Fundaingatlan Kft. - Bokréta 19.


Hasonló ingatlanok a környéken (2):


178MFt - 74 m² - 3+0 szoba
5. Budapest, Falk Miksa utca
emelet: 3. | nézet: udvar
lift Hívós | fűtés: Kombi-cirkó
(chx32988)

199MFt - 70 m² - 3+0 szoba
5. Budapest, Október 6. utca
emelet: 1. | nézet: Városi Panoráma
lift van | fűtés: Gáz (cirkó)
(fi1073)

 

Eladó lakás Budapest - Lakások, Ingatlanok - Petőfi Sándor utca (Belváros) eladó Lakás
Ingatlan: Budapest 5 kerületben, Belváros, Petőfi Sándor utca - Lakás